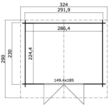
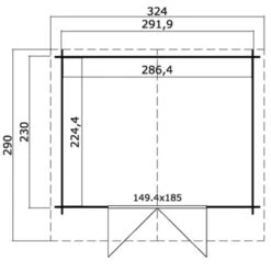
Tuinhuis Mark 292x230cm geïmpregneerd
Tuinhuis Mark is een praktische en royale blokhut met een traditionele uitstraling. Achter de afsluitbare dubbele deur met lage dorpel is bergruimte voor waardevolle spullen en/of tuingereedschap.
De latten voor de 4-vlaks raamverdeling op de ruit in de deur worden los meegeleverd.
De traditionele stapelbouwwijze met de massieve 28mm dikke wandbalken maakt de montage van dit tuinhuis relatief gemakkelijk en prima te doen voor de gemiddelde klusser. Deze blokhut wordt geleverd inclusief een basis bitumen dakbedekking. Het meegeleverde asfaltpapier is meer geschikt voor tijdelijk gebruik. Voor jarenlang plezier en een duurzame en kwalitatief hoogwaardige afwerking is het advies het dak af te werken met dakshingles. Dakshingles zijn in 3 kleuren verkrijgbaar.
Alle aangegeven maatvoeringen zijn circa maten.

















Beoordelingen
Er zijn nog geen beoordelingen.